Paddock Bunker, Dollis Hill, London
A set of bunkers were set up under Whitehall before WWII broke out, known as War Cabinet Rooms. These weren't able to withstand a direct strike, so a new bunker was built deep under Dollis Hill in North London. It was designed to hold 200 people and be an effective last refuge for the Cabinet to meet and operate. It was used only once for a cabinet meeting, as Churchill wasn't fond of it. It was abandoned towards the end of the war. It was used by the Royal Mail for awhile, but also abandoned.
The Bunker is opened twice a year by the Stadium Housing Association. When I visited it was open as part of Openhouse Weekend, and the event was operated by the SubBrit group. I was to go down as part of a group of 20 or so. The entrance to the bunker is a small non-descript modern brick building.

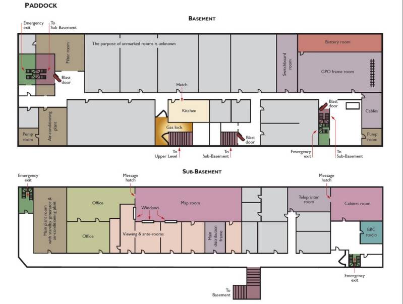
Map of Upper & Lower Floor (Source:Nick Catford @ Subbrit)

After donning hard hats, it was off down the tight stairs to the first level of the bunker. Here we gathered in a corridor for a safety talk and brief history of the bunker. A number of the rooms were taped off due to damp connected issues. The SubBrit chap explained how when they discovered it, it was flooded out. This first level is according to signs, Level 27. The lower level being Level 28. This was from the Post Office days, not during the War.

The first room we all wandered into was the main air conditioning plant room, this is where the air within the bunker was filtered and circulated.

The air conditioning vents in the Filter Room. Not the rusty brown door sticking out of the vent. This would be closed to seal off the air from outside, in the event of a gas attack.

Down some spiral stairs, and we were into the lower level of the bunker. This room was the standby generator room, ready to provide power when it couldn't be received from outside the bunker. The main Crompton & Parkinson diesel generator leads out from the camera.

The Control panel for the generator.

The three windows looking into the Map Room here represent the 3 branches of the armed forces.

The far end of the Map room.

The main corridor in the lower basement.

The remains of the Cabinet Room, the cabinet only ever met here once.

This mess of water damaged fittings is what was once the BBC Studio, for keeping the nation informed during times when the bunker was in use.

On leaving the lower basement, it was up the spiral stairs to the upper level.

Here we went into the Frame Room, with the Main Distribution Frame remaining, still with dust covers labelling different sections.

Front shot of the main distribution frame.

This room was used to store the many batteries keeping the place going. The floor is tiled to ease cleaning up leaks.

A place of this size with a proposed 200 people would need somewhere to keep them fed, this was it, the main kitchen.

As was evident throughout, the dampness was rather serious. Damp and mould existed everywhere.

Information acquired eminent historian Nick Catford via Subbrit. For more information go here.
Thanks to Stadium Housing and the SubBrit volunteers, including Els.
Add comment
Comments